O2 OFFICE
Arde Office O2 predstavlja poslovni objekat savremenog dizajna projektovan za potrebe projektantskog tima.
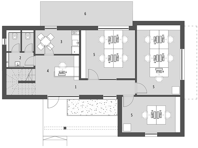
Objekat je koncepiran kao dvospratni. U ulaznom delu projektovan je hol sa prijemnim pultom.
U prizemlju je smešten sanitrani čvor, pomoćne prostorije , konforne i adekvatno osvetljene kancelarije.
Na spratu su predviđene kancelarije i sala sa sastanke, kao i izlaz na veliku terasu.
Svojim atraktivnim izgledom i funkcionalnom organizacijiom jeste reprezent samih korisnika koji su učestvovali u njegovom kreiranju.
Bruto površina prizemlja | 104,00 m2 |
Bruto površina sprata | 92,00 m2 |
Ukupna bruto površina objekta | 196 ,00 m2 |
Ukupna neto površina objekta | 158,10 m2 |
Osnova prizemlja

Legenda
1. hodnik
2. wc
3. kuhinja
4. recepcija
5. kancelarija
6. terasa
Osnova sprata

Legenda
1. hodnik
2. wc
3. ostava
4. sala za sastanke
5. kancelarija
6. terasa
ARDE O2
Fasade
